88㎡小戶型二居室,為老婆打造衣帽間,每天都過得很浪漫
今天分享的是一套建筑面積88平米的小戶型二居室案例,除了兩間臥室之外,還有一個獨立的衣帽間,而且配色也是非常的小清新,從一進門開始就給人一種文藝范的感覺,覺得大家都可以嘗試一下這樣裝。

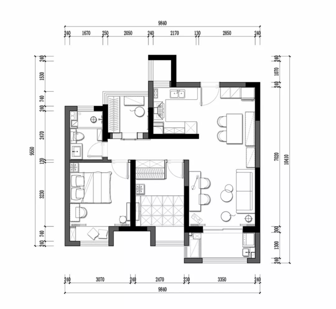
平面布置圖

入戶沒有玄關走廊,在入戶門的一側擺放了換鞋凳和做了掛衣鉤,再加上冰箱上的置物架,也能滿足日常更換鞋子、衣服,擺放雜物的需求。

在換鞋凳邊上的就是卡座式的餐廳,藍灰色的軟包靠墊和藍色墻面結合起來,看起來非常舒服,卡座的設計也很適合小戶型,讓通道變得更寬敞。

在入戶門的另一側是廚房空間,做了U字型的櫥柜布局,水槽的上方用掛桿和隔板來代替吊柜,在日常的使用上會更為方便一些。

灰色的沙發、藍色墻面上點綴掛畫和置物架,再加上精致的鐵藝網格椅子和茶幾,整個客廳都給人一種優雅而又大方的感覺。

通往臥室的走廊也被充分的利用起來做了收納,嵌入式的柜子和隔板架的結合,方便擺放不同的東西。

在谷倉門的背后就是屋主為妻子專門留出的一個迷你衣帽間,內部擺放穿衣鏡和做到頂的柜子,非常實用,也只需要不到3平米的空間。

主臥的墻面延續了客餐廳的風格,靠著飄窗的地方用梳妝臺來代替床頭柜,金屬質感的網格椅子和壁燈也讓臥室多出優雅感覺。

次臥的床是靠著窗戶擺放的,和衣柜之間的空間不大,所以用簡約款的小茶幾來代替床頭柜。整個次臥以灰色為主,搭配白色、木色,顯得簡潔大方。

衛生間內部也是以灰白色為主,加入了黑色的浴簾和浴室柜,用浴簾加上擋水條來做干濕分離,更適合空間不大的小戶型衛生間。
END
圖文源自網絡,若侵權請聯系刪除

萍鄉市豫章裝飾設計工程有限公司成立于1997年,是一家集室內外裝飾設計、施工、建材,售后服務于一體的專業性裝飾公司,凝聚了一批專業的設計與施工隊伍,秉承“設計專業化,施工規范化,價格透明化,健康環保化”的裝修理念,持續不斷的優化服務質量,咨詢熱線:0799-6861118
同類文章排行
- 萍鄉全包裝修有哪些優勢?帶來什么好處?
- 萍鄉房屋裝修價格高嗎?該怎么選擇
- 一年一度的隱蔽工程排查服務如期而到--創百年企業,做百年服務!
- 說吊頂過時了,解鎖5種吊頂新設計 天花板顏值100分!
- 現代大平層,時尚優雅!
- 絕美輕奢新中式:一杯清茶,共待流年!
- 2021裝修漲價已成定局! 年前定裝修保價,省到就是賺到!
- 180㎡現代簡約,高級的黑白配,精致的細節點綴,靜雅端莊的美!
- 簡約風小戶型二居室,臥室里還擠出了衣帽間!
- 色彩跳躍,奢華浪漫的現代氣息!
最新資訊文章
您的瀏覽歷史
